Vendita Appartamento a Sanremo IMPERIA - € 335.000 - Rif. T380

Caratteristiche

Prezzo
€ 335.000
Riferimento
T380
Tipologia
Appartamento
Categoria
Residenziale
Rooms
3
Bagni
1
Riscaldamento
Autonomo
Condizioni
Nuovo
Energy_class1
A
Energy_class2
75,8383
Elevator
Si
Tipo contratto
Vendita
Air_conditioning
Si
Floor
3
Bedrooms
2
Kitchen
Angolo cottura
Mq
81
Città
Sanremo
Province
IMPERIA

Descrizione immobile

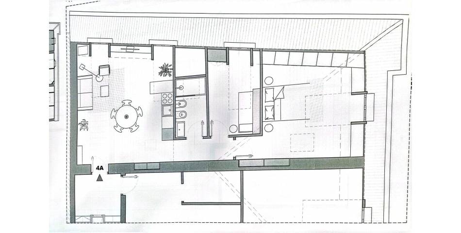
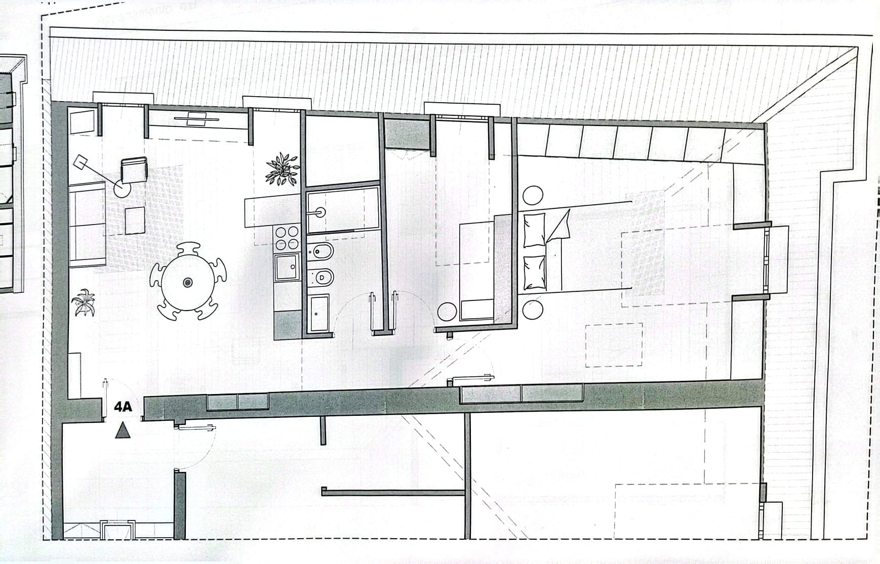
T380 SANREMO centralissima, proponiamo in vendita prestigiosi trilocali mansardati appena ristrutturati di 80 mq circa, al quarto piano con ascensore composti da: ingresso su ampio soggiorno/angolo cottura, camera matrimoniale, cameretta e bagno. Si trovano a pochi passi da tutti i servizi, da P.zza Colombo, dalle principali vie dello shopping e dal famosissimo Teatro Ariston. APE A1 IPE 75.8383 kwh/m2 RICHIESTA EURO 335.000,00.

Contattaci per questo immobile


Immobili simili